Dit is mijn huis(je)

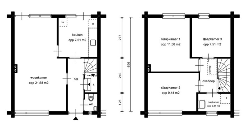
Dochter ligt op slaapkamer 3 boven onze eigen keuken. (Maar ruik nooit wat als ik gekookt heb bij haar) Het huis van de buren is net zo. Er zitten dus 2 muren tussen. Mechanische ventilatie zit rechtsonder in de hoek van de keuken en gaat vanaf daar meteen naar boven. Evt zit er een afvoer nog in de muur van de keuken (bij mij is dat dicht, weet niet of dat bij de buren ook is, rechtsboven. Maar dan zou ik het buiten ook moeten ruiken en op mijn slaapkamer)




