





Krijg echt stress als ik zie hoe veel meer kosten dan ik zelf berekend had er bij jullie bij komen. Maar ligt er denk ik aan hoe luxe je het wil hebben.
Moderators: NadjaNadja, Essie73, Polly, Muiz, Telpeva, ynskek, Ladybird






Noeps schreef:Wij zitten momenteel ook volop in het nieuwbouw-proces. Verwachte oplevering vlak na de kerstdagen.
Wat we hebben aangepast tov de standaardwoning:
- uiteraard veel meer stopcontacten, lichtpunten en schakelaars en alle stopcontacten verlaagd naar 30cm boven de vloer
- 10m grondkabel voor tuinverlichting
- buitenkraan op de achtergevel
- loze leiding voor een datakabel naar de eerste verdieping (ivm extra wifipunt in de werkkamer boven)
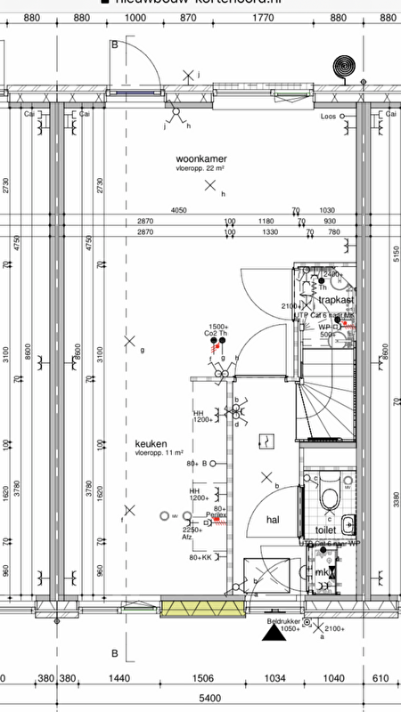
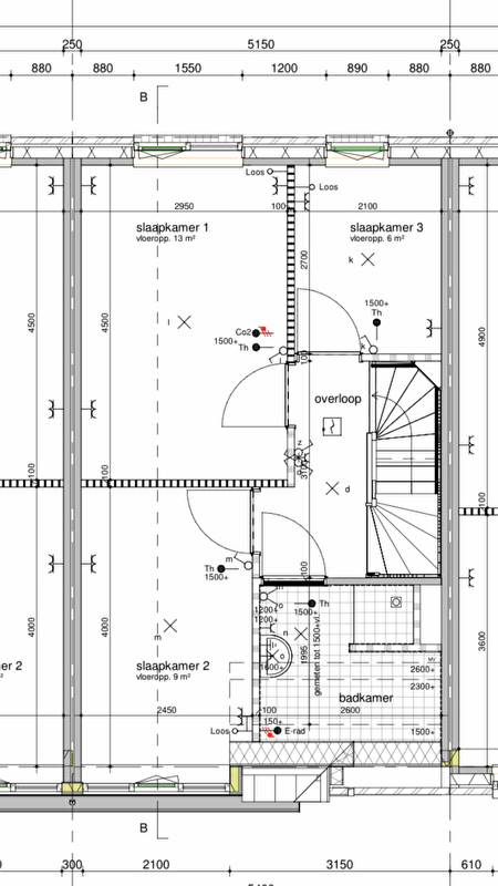
- waar jullie in slk 3 een gekke hoek hebben, komt bij ons een inloopkast
- keuken verlengen met 2.40m en openslaande deuren
- trapkast
- de badkamer laten vervallen bij de aannemer en gaan we in eigen beheer laten afbouwen. Via de aannemer vonden we de keuzes heel beperkt en belachelijk duur. Nu gaat de badkamer ons alsnog veel extra geld kosten, maar hebben we wel alle keuzevrijheid zoals een deel van de muren laten stuccen en inbouwkranen
- zonnepanelen
Geschatte meerkosten (zowel via de aannemer als via de partijen waar we de vloer / keuken / badkamer / afwerking muren hebben geregeld en wat we zelf nog moeten doen) komen tot nu toe uit op 80k ten opzichte van de v.o.n prijs.
_xManadisx_ schreef:Dit zijn de tekeningen van de mijne. Zit dus inderdaad een dakraam op en 4 zonnepanelen
[ [url=m/aCpArF.png]Afbeelding[/url] ]
[ [url=m/9tcfx7.png]Afbeelding[/url] ]
[ [url=m/uvTtl8.png]Afbeelding[/url] ]
[ [url=m/cemNci.png]Afbeelding[/url] ]
[ [url=m/jAA41Y.png]Afbeelding[/url] ]
Krijg echt stress als ik zie hoe veel meer kosten dan ik zelf berekend had er bij jullie bij komen. Maar ligt er denk ik aan hoe luxe je het wil hebben.
ikke schreef:Daarnaast zou ik overwegen om de badkamer en slaapkamer 1 iets kleiner te maken ten gunste van slaapkamer 2 en 3. Echter, dat verplaatsen van die wanden is vaak erg duur omdat het fors ingrijpt in de installaties in die wanden.
IMANDRA schreef:Ja ben wel hard na aan het denken over die hoek bij slaapkamer 3. Ik wil er denk ik een kast van maken uiteindelijk, maar dan twijfel ik of ik de kastopeningdeur in slaapkamer 3 wil hebben of juist op de gang, voor bijv. beddengoed in te bewaren.
Die meerkosten zijn inderdaad geen pretje. Zit inmiddels aan zo'n 80k en moet er nog een paar dingen bijrekenen. Dit is overigens wel al incl. tuin, oprit, keuken en nieuwe badkamer. Probeer alles zo ruim mogelijk te pakken zodat het alleen maar meevalt. En een buffer overhouden voor onverwachte kosten.
Suzanne F. schreef:Manadis: Hoeveel extra heb je dan nu gebudgetteerd?
_xManadisx_ schreef:Suzanne F. schreef:Manadis: Hoeveel extra heb je dan nu gebudgetteerd?
Nouja als je puur naar de kosten van de bouw extra kijkt 10-15 k. Afwerking ook zoiets, dus rond de 30k. Met een keuken zonder hele uitgebreide aanpassingen. Gewoon combi-oven, koelkast/vriezer en afwasmachine. Meer is wel mogelijk, maar dan moet ik meer van familieleden lenen.
IMANDRA schreef:Ja ben wel hard na aan het denken over die hoek bij slaapkamer 3. Ik wil er denk ik een kast van maken uiteindelijk, maar dan twijfel ik of ik de kastopeningdeur in slaapkamer 3 wil hebben of juist op de gang, voor bijv. beddengoed in te bewaren.
Die meerkosten zijn inderdaad geen pretje. Zit inmiddels aan zo'n 80k en moet er nog een paar dingen bijrekenen. Dit is overigens wel al incl. tuin, oprit, keuken en nieuwe badkamer. Probeer alles zo ruim mogelijk te pakken zodat het alleen maar meevalt. En een buffer overhouden voor onverwachte kosten.
ikke schreef:Welke lamstraal heeft jouw badkamer ontworpen?
Wanneer je de douchebak naast de leidingkoker zet (in plaats van ervoor zoals nu gepland) dan kun je tegen de leidingkoker een toilet plaatsen en heb je een efficiënter gebruik van de ruimte.
Het muurtje inkorten en daar je leidingen en kraan in verwerken, dan kom je weg met de beperkte hoogte.
De warmtepomp op de BG (dat maak ik tenminste op uit tekst in de trapkast) is op zich niet dom maar kijk wel goed hoe ze de geluidsisolatie regelen. Zaag ze daar desnoods eens flink over door.
Daarnaast zou ik overwegen om de badkamer en slaapkamer 1 iets kleiner te maken ten gunste van slaapkamer 2 en 3. Echter, dat verplaatsen van die wanden is vaak erg duur omdat het fors ingrijpt in de installaties in die wanden.
ikke schreef:IMANDRA schreef:Ja ben wel hard na aan het denken over die hoek bij slaapkamer 3. Ik wil er denk ik een kast van maken uiteindelijk, maar dan twijfel ik of ik de kastopeningdeur in slaapkamer 3 wil hebben of juist op de gang, voor bijv. beddengoed in te bewaren.
Die meerkosten zijn inderdaad geen pretje. Zit inmiddels aan zo'n 80k en moet er nog een paar dingen bijrekenen. Dit is overigens wel al incl. tuin, oprit, keuken en nieuwe badkamer. Probeer alles zo ruim mogelijk te pakken zodat het alleen maar meevalt. En een buffer overhouden voor onverwachte kosten.
Je kunt ook nog dat vak in twee delen en in beide slaapkamers er een inbouwkast van maken.
Stukje muur eruit hakken en er een kozijn met deur in zetten. Dat kun je achteraf ook zelf doen.
IMANDRA schreef:Ja ben wel hard na aan het denken over die hoek bij slaapkamer 3. Ik wil er denk ik een kast van maken uiteindelijk, maar dan twijfel ik of ik de kastopeningdeur in slaapkamer 3 wil hebben of juist op de gang, voor bijv. beddengoed in te bewaren.
Die meerkosten zijn inderdaad geen pretje. Zit inmiddels aan zo'n 80k en moet er nog een paar dingen bijrekenen. Dit is overigens wel al incl. tuin, oprit, keuken en nieuwe badkamer. Probeer alles zo ruim mogelijk te pakken zodat het alleen maar meevalt. En een buffer overhouden voor onverwachte kosten.
ikke schreef:IMANDRA schreef:
Hoe bedoel je?
Nee, onzin wat ik schrijf. Twee dingen door elkaar gehaald. Sorry.
_xManadisx_ schreef:Ja, tuin nog even niet meegerekend.
Mri schreef:ikke schreef:Nee, onzin wat ik schrijf. Twee dingen door elkaar gehaald. Sorry.
Jij had in je hoofd dat deze inham tussen 2 kamers zat, of niet?
Dat je dan vanaf beide kamers een ondiepe inbouwkast zou hebben.