
En de computerplek op de plek van de keuken? Hoe groot moet het zijn idealiter?
Moderators: NadjaNadja, Essie73, Polly, Muiz, Telpeva, ynskek, Ladybird

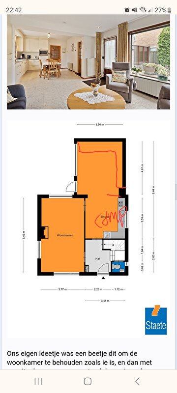
karijn schreef:Hier een muur zetten lijkt mij niet mogelijk. Er zit een raam.
[ [url=m/eCptqn.jpg]Afbeelding[/url] ]
De achterste ruimte opknippen lijkt zo op papier leuk maar die ruimte is nog geen 5 m.
Een aanbouw is een optie maar dan ben je wel een raam in de woonkamer kwijt. Of je moet een serre-achtige aanbouw maken zodat je wel voldoende licht in je woonkamer houdt.
Lastig.

. Soms he...
. Ik gok dat wanneer alles af is, we eindelijk een nieuw huis vinden


DubbelFun schreef:Ik zou onder de balk juist een dichte wand maken met aan beide zijden een opening en daarachter een walk-in closet van 2 kanten benaderbaar (his&hers), máár dat werkt alleen als je vóór die wand/balk ruimte hebt om een bed in de lengte neer te zetten zonder dat je de toegangsdeur blokkeert.
Malenka schreef:Na het zien van de foto's zou ik het anders doen. Het bed met het hoofdeinde tegen de schuine wand. Maar dan wel in het midden. En een nieuwe kledingkast bouwen die de hele wand van de deur beslaat. Beetje zoals een ensuite wand. Dan schuift de deur in een dubbel wandje achter in de kast.
[ [url=m/yYjgld.png]Afbeelding[/url] ]
[ [url=m/fHt5y1.png]Afbeelding[/url] ]
Malenka schreef:Na het zien van de foto's zou ik het anders doen. Het bed met het hoofdeinde tegen de schuine wand. Maar dan wel in het midden. En een nieuwe kledingkast bouwen die de hele wand van de deur beslaat. Beetje zoals een ensuite wand. Dan schuift de deur in een dubbel wandje achter in de kast.
[ [url=m/yYjgld.png]Afbeelding[/url] ]
[ [url=m/fHt5y1.png]Afbeelding[/url] ]
. Eventueel met onzichtbare deuren, voor een nog mooiere afwerking
.
. 
