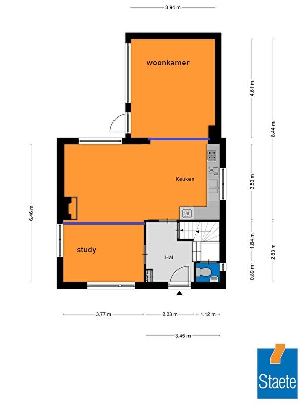
Ik heb ook een indelingsvraag hahaha! We zijn nu boven nog bezig met (zelf) verbouwen. Maar langzaam komt beneden in zicht. We hebben een paar wensen waar we ons over breken:
- een computerhoek die afgeschermd is
- een achterom voor jassen/schoenen (momenteel loop je nu direct de keuken in, en het is hier de gewoonte om achterom te komen)
- open haard blijft ongeveer op dezelfde plek maar wordt vervangen door een kachel
Ook vinden we het nu eigenlijk wel fijn dat de woonkamer ''los'' is van de keuken, en dus met een deur dicht te maken is.
[ [url=m/QlnU0F.jpg]Afbeelding[/url] ]
[ [url=m/xe130Q.jpg]Afbeelding[/url] ]
[ [url=m/PPlNTX.jpg]Afbeelding[/url] ]
Ons eigen ideetje was een beetje dit om de woonkamer te behouden zoals ie is, en dan met ensuite deuren een computerplek voorin maken zodat je wel lichtdoorval blijft houden. Dan zouden we de deur naar de keuken verplaatsen (rood) en bank en tv (paars) zo kunnen plaatsen. Aangezien de woonkamer twee deuren bevat zouden we ook evt. nog 1 dicht kunnen maken, maar dat zou dan aan de voorkant van het huis evt kunnen.
[ [url=m/T7s411.jpg]Afbeelding[/url] ]
https://www.onehandinmypocket.nl/wp-con ... G_0068.jpg dit bedoelen we dan ongeveer
wat zijn jullie ideeën? Zoals je ziet moet er sowieso het nodige gemoderniseerd worden, dus de opties zijn eindeloos
