Donderdag, gisteren en vandaag hebben we nog veel gesprekken gehad. Zo hebben we een bedrijf gevonden waar we de ramen van gaan afnemen, de elektriciteit, het sanitair, de verwarming en de ventilatie is ook gekozen (inclusief warmtepomp en zonnepanelen) en vandaag hebben we een akkoord gegeven op al het ruwe bouwmateriaal.
Het begint heel echt te worden

Van de week zijn de waarschuwingsbanners ook geleverd zodat we wettelijk ook in orde zijn
En om goed te kunnen uitmeten eer we beginnen zijn we via de Lambert Coördinaten vandaag de merkstenen gaan zoeken. Het was even goed zoeken in de volle volgroeide grond maar we hebben ze gevonden dankzij het apparaat! En nu kunnen we onze grond fatsoenlijk gaan afzetten en vanaf de juiste aflijning gaan meten straks

Een van de waarschuwingsbanners

Het zoeken van de merkstenen via de Lambert Coördinaten

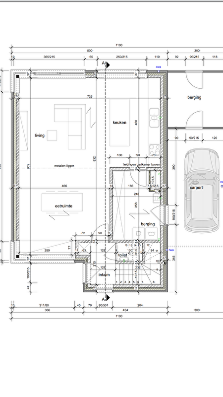
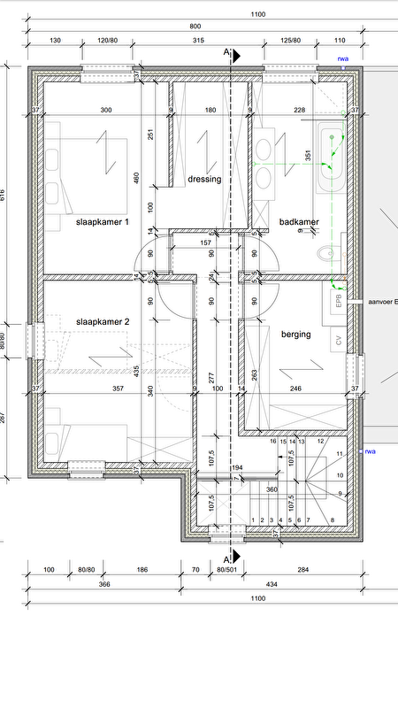
Plannen van het huis (excuus voor de slechte kwaliteit
)

Grond (het is het stuk onderin voor de waterbekken). Dat is in 3e gedeeld en het, middelste, grootste gedeelte is van ons.
maar dat is iets te positief vrees ik 
. Toen wij begonnen was het ook al druk in de bouw. Maar nadat we onze bouwmaterialen hadden besteld werd het echt een gekkenhuis. Wij hebben wel zo veel mogelijk alles in één keer besteld. Hadden ook plaats om het neer te zetten. Dus binnen was binnen (of in dit geval buiten
). Maar hierdoor kon er wel altijd doorgewerkt worden.
). Het zijn 2 drukke weken geweest waarin er nog veel geregeld moest worden en nu komt dan het moment dat we daadwerkelijk mogen beginnen erg dichtbij.
!! grapje 
















